Trilocale in vendita

Pozzuoli, Via Babbo Francesco - Pozzuoli Via Napoli
€ 175.000
3 locali 3 locali
60 Mq 60 Mq
1 bagno 1 bagno

Trilocale in vendita

Pozzuoli, Via Babbo Francesco - Pozzuoli Via Napoli

Descrizione annuncio

VIA BABBO FRANCESCO - ZONA LUNGOMARE, TRILOCALE RISTRUTTURATO CON LASTRICO SOLARE DI PROPRIETA'.


In Via Babbo Francesco, una traversa del lungomare Pertini a pochi minuti a piedi dalla stazione della cumana di Gerolomini, proponiamo in vendita un appartamento finemente ristrutturato pronto all'uso.

La soluzione è situata in uno stabile recentemente ristrutturato, tramite ECOBONUS, nel 2023.

Sono stati eseguiti lavori di rinforzo delle pareti del palazzo e la realizzazione di cappotto termico sull'intero stabile.

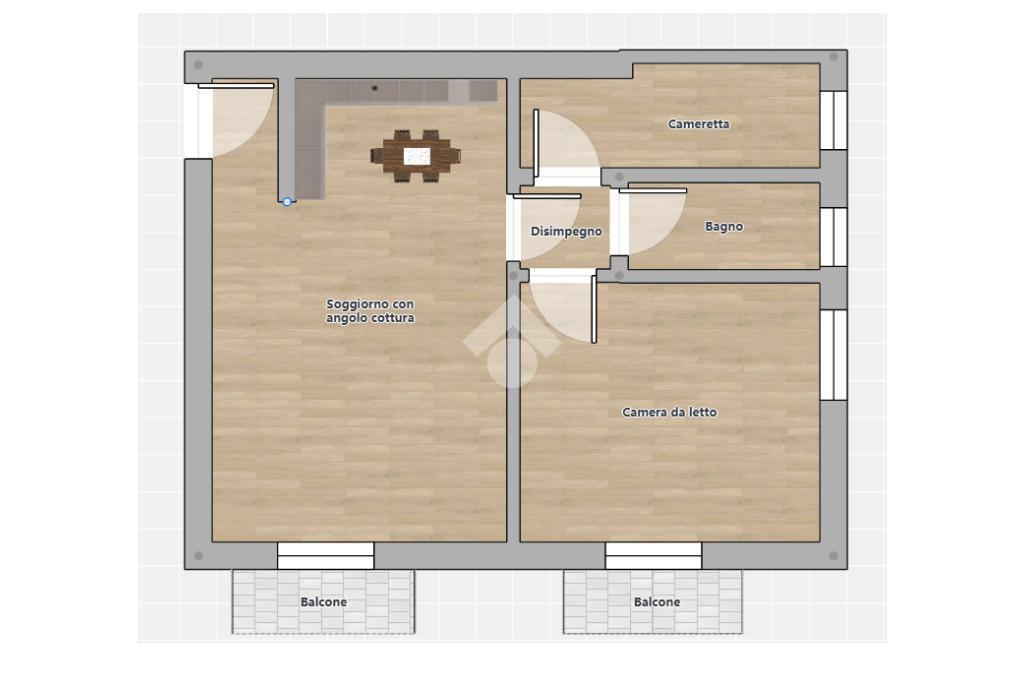
Trattasi di un trilocale di 60 mq interni così suddivisi:

- Ingresso in ampia zona living con angolo cottura, luminosa con balcone.
- Disimpegno che porta alla zona notte dove vi sono; camera da letto matrimoniale ampia con finestra e balcone, seconda camera da poter utilizzare come cameretta o come studio e ampio bagno finestrato con box doccia.

L'immobile si presenta in ottime condizioni interne, ristrutturato in maniera moderna con controsoffittatura, illuminazione con faretti, infissi in doppio vetro camera e zanzariere, impianto di riscaldamento e condizionatori.

A completare la soluzione vi è un lastrico di copertura, pavimentato e attrezzato, da cui è possibile godere di una splendida vista sul mare e sul Rione Terra.

L'immobile sopradescritto è gestito con INCARICO IN ESCLUSIVA ed è visionabile tutti i giorni, previo appuntamento telefonico da concordare al numero 081 526 5688 o tramite il servizio di messaggistica whatsapp al medesimo recapito.

UN NOSTRO AGENTE SARA' PRONTO A RISPONDERE ALLE VOSTRE DOMANDE CON PROFESSIONALITA' E CORTESIA.

Presso la nostra agenzia inoltre, è possibile su richiesta, grazie ai professionisti della società di mediazione creditizia del gruppo Kiron, ricevere una consulenza gratuita e senza impegno al fine di accedere ad un'ampia gamma di prodotti finanziari, usufruendo delle convenzioni gli istituti bancari ed il gruppo Kiron riservano in forma esclusiva solo al gruppo Tecnocasa.

Mostra tutto

Nelle vicinanze

Trasporto pubblico Trasporto pubblico
Gerolomini
Gerolomini
300 m
Cappuccini
Cappuccini
510 m
Trasporto pubblico
180 m
Via Provinciale San Gennaro - Chiesa di San Gennaro
Via Provinciale San Gennaro - Chiesa di San Gennaro
560 m
Pozzuoli
1,2 Km
Scuole Scuole
Scuola de Santis
370 m
Liceo Statale "Virgilio"
380 m
Scuola Elementare Maria Immacolata
500 m
Multicenter
690 m
Scuola Media Statale Giacinto Diano
770 m
Farmacia Farmacia
Farmacia Dr.ssa Rossella Petruzzelli
590 m
Farmacia ADAM Dott. Gesualdo
610 m
Farmacia Dott. ssa Paola La Marca
810 m
Farmacia
870 m
Farmacia Azan
920 m
Supermercati Supermercati
Conad
80 m
TS Conad
530 m
Supermercato Daber
640 m
Decò
910 m
Supermercati Briò
940 m
Negozi Negozi
Negozi
80 m
Paninoteca Jebili's
90 m
Punto Verde
470 m
Il Forno
480 m
Invidia Abbigliamento
480 m
Bar Bar
Bourbonstreet Il Baretto
90 m
Osteria D.O.C.
180 m
Banana's Italianbar
580 m
Bar
620 m
Bar Souvenir Guerriero
730 m
Ristoranti Ristoranti
La Cucina della Rosachiara
60 m
Enzimi
90 m
Ristorante BenGala
110 m
Chipstore
120 m
Scugnizzi
120 m
Mostra tutto

Caratteristiche

Rif.:
61135112
Piano:
3 di 4 (ultimo Piano)
Balconi:
2
Terrazzi:
1
Camere da letto:
2
Arredamento:
Assente
Mostra tutto
Prezzo Prezzo
€ 175.000
Rata mutuo Rata mutuo
€ 831 / mese
Spese annue Spese annue
€ 504
Proponi il tuo prezzoProponi il tuo prezzo

Classe Energetica

G
G
G
G
G
G
G
G
G
EP globale non rinnovabile:
175.00 kW h/m² anno
EP globale rinnovabile:
175.00 kW h/m² anno
EP invernale del fabbricato:
EP estiva del fabbricato:
Anno di costruzione:
1967
Riscaldamento:
Autonomo
Tipo impianto:
A radiatori
Tipo alimentazione:
Altro

Ti interessa visionare l'immobile?

Fissa un appuntamento  Fissa un appuntamento

Richiedi informazioni

Clicca su Leggi per aprire l'informativa
* Questi campi sono obbligatori

Calcola il tuo mutuo

Semplice e senza impegno
Anticipo

( % )
Mutuo

( % )

pochi semplici passi

inserisci i tuoi dati
Questionario completato
Grazie per aver richiesto un appuntamento senza impegno con un nostro Consulente del Credito e Assicurativo.

Hai inserito correttamente tutti i dati necessari e a breve riceverai una e-mail con un link da convalidare per inviare i tuoi dati.
Affiliato
Dimensione Immobiliare Srl
Via Cosenza, 36 80078 Pozzuoli (NA)

Il nostro staff


  • Maurizio Di Martino
    Affiliato

  • Rosanna Fasano
    Coordinatrice

  • Martina Masola
    Collaboratrice

  • Mario Esposito
    Responsabile
Via Cosenza, 36 80078 Pozzuoli (NA)
Zona: Pozzuoli Centro-Via Napoli-Pozzuoli Alta
Mostra su mappa
Orari: Lunedì-Venerdì 09:00/20:00 - Sabato 9:00/18:00
Affiliato
Dimensione Immobiliare Srl
Via Cosenza, 36 80078 Pozzuoli (NA)

2026 Tecnocasa Franchising S.p.A. - P. IVA 08365160152 - Via Monte Bianco 60/A 20089 Rozzano (MI). Ogni agenzia ha un proprio titolare ed è autonoma. Privacy policy | Policy utilizzo | Cookie policy